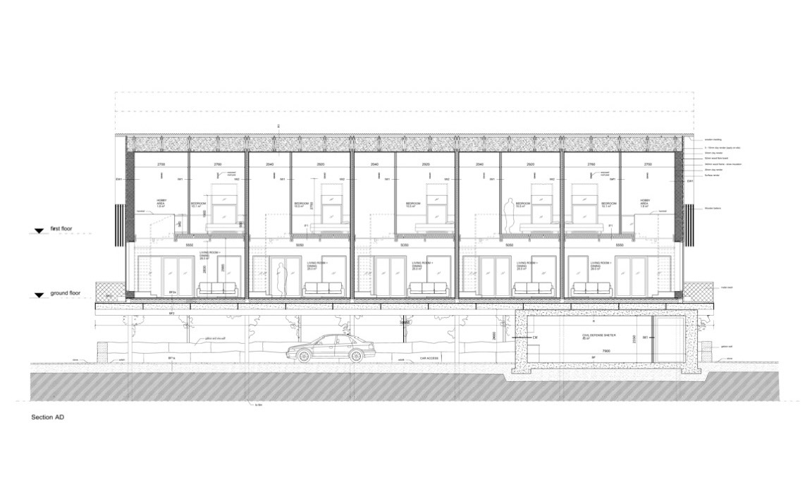
Apartment complex, 1200m2. Estimated construction schedule: unknown. Ecological materials: straw elements and timber. Location: Lahti; Design team: MAP & AARK.