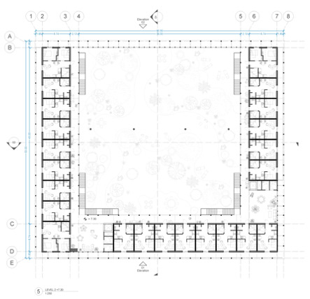
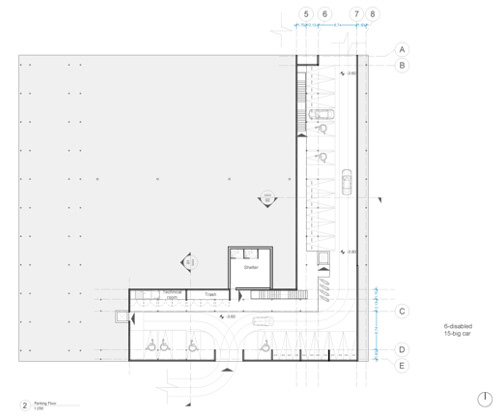
A WINTERGARDEN Community Living ConcepT (& Senior housing). BUILDING IN MASS TIMBER, 5000+ B-m2 OF WHICH GARDEN AREA 1600 m2. Location AT BORDER TO Helsinki (Finland). STATUS / EXCEPTIONAL PERMIT GRANTED, Estimated construction schedule 2027. Concept & Design team MAP + AARK in close collaboration with the Client. FOR MORE INFORMATION MAJVIKSENIOR.COM

You may also like

Back to Top